Технические данные

ПРОЕМЫ ВОРОТ:
Высота - 4,2 метра
Ширина - 4 метра

ХАРАКТЕРИСТИКИ КРАН-БАЛОК:
Высота до крановой подвески - от 4 метров
Грузоподъемность (в зависимости от цехов) - 2,5 - 5 тонн
Данные по цехам

1. Инструментальный цех
Площадь помещения - 515м²
Вспомогательные помещения - 50м²
Размеры - 35,3м.*18,4м.
Грузовые ворота.

2. Гараж малый
Площадь - 42,8м²
Размеры - 11,5м.*3,73м.
Есть смотровая яма. Рассчитан для хранения одного автомобиля.

3. Гараж основной
Площадь - 440м²
Размеры - 25,4м.*17,4м.
Вспомогательные помещения - 52м²
Четверо грузовых ворот, смотровая яма.
(В настоящий момент сдан)

background

4. Тележечный цех
Состоит из четырех производственных помещений от 185 до 317м²

5. Заготовительный цех
Площадь - 504,9м²
Размеры - 29,58м.*504,9м
Одни грузовые ворота. Цех находится рядом с открытой площадкой для хранения сырья. Организованы условия подачи сырья с открытой площадки внутрь цеха для дальнейшей обработки. В цехе установленны двое пресс-ножниц.

6. Козловой кран. Открытая площадка для хранения сырья
Грузоподъемность - 5 тонн.

7. Склад
Площадь - 520м²

background

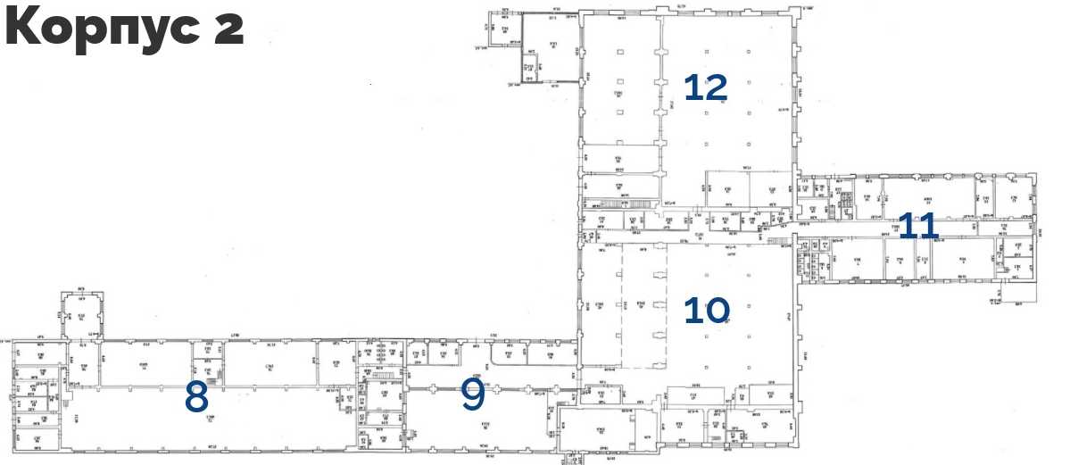
8. Прессовый цех
Площадь помещения - 682м²
Площадь вспомогательных помещений ≈ 415м²
В помещении установленно прессовое оборудование. Есть небольшая кузня. Три кран-балки, грузоподъемностью от 2,5 до 5 тонн.


9. Цех ОГМ
Представляет собой два основных производственных помещения, площадью 321,4м² и 154,6м² соответственно.
Площадь вспомогательных помещений - 65м²
В цехах установленно действующее токарное и фрезерное оборудование.

10. Цех основного производства
Площадь ≈ 440м²
Оборудован сверлильным и токарным оборудованием
Кран-балка грузоподъемностью 3 тонны

background
11. Вспомогательные помещения основного производства
Помещение заводской столовой, площадью - 276м²
12. Вспомогательные помещения основного производства - 180м²
Общая площадь - 827,5м²
Цех, в свое время был переоборудован из здания паровозного депо. Имеет высокие потолки до 8 метров. Оснащен пескоструйным оборудованием.
Одни грузовые ворота.
Craftum Создано на конструкторе сайтов Craftum